PROFIL
delusearchitects sind ein Büro mit 10 Architektinnen und Architekten in Berlin, die als eingespieltes und leistungsstarkes Team Planungsaufgaben kreativ und professionell bearbeiten. Dabei setzen wir unsere Energie dafür ein, dass ein Projekt gleichermaßen gestalterisch anspruchsvoll und wirtschaftlich erfolgreich ist.
Wir arbeiten schwerpunktmäßig in den Leistungsphasen 1- 4 (Entwurf und Genehmigung) und haben eine besondere Stärke in der Abstimmung komplexer Projekte mit den beteiligten Bauämtern vor Ort entwickelt.
Dabei liegt unsere Spezialisierung in der Erstellung von Machbarkeitsstudien für Projektentwicklungen verschiedener Investoren.
Die über mittlerweile 28 Jahre gewachsenen guten Beziehungen zu den Ämtern helfen uns, sehr schnell fundierte Aussagen zur Bebaubarkeit einzelner Grundstücke zu treffen.
Wir arbeiten in enger Tuchfühlung mit unseren meist privaten Bauherren und entwickeln zusammen mit ihnen „custom-made-architecture“.
Dabei setzen wir die Vorstellungen unserer Auftraggeber, seine gestalterischen Ansprüche, sein Budget und seine terminlichen Vorgaben durch flexible und kreative Architekten in die Realität um. Mit hohem Anspruch an die Qualität unserer Planung schaffen wir eine enge, meist sehr persönliche Bindung an unsere Auftraggeber.
Unser Ziel ist dabei, hochwertige Architektur unter Berücksichtigung der vorgenannten Rahmenbedingungen zu schaffen.
Unsere Arbeit als Team von Architekten ist für unsere Bauherren geprägt von einem direkten und unkomplizierten Austausch, wir sind konzentriert und schnell und widmen unsere ganze Aufmerksamkeit diesen Zielen.
Meine persönliche Arbeit wird ganz wesentlich durch verschiedene Erfahrungen geprägt:
Die 1,5-jährige Seefahrt auf Handelsschiffen nach dem Abitur hat mir geholfen, einen Blick über den Tellerrand enger akademischer Welten zu werfen und das regelmäßige Aikido-Training seit 39 Jahren gibt mir die Konzentrationsfähigkeit, die für eine professionelle Arbeit als Architekt notwendig ist.
Meine Familie schafft das notwendige Gegengewicht zu meiner Arbeit und schärft den Blick für das Wesentliche.
PROFIL
delusearchitects sind ein Büro mit 10 Architektinnen und Architekten in Berlin, die als eingespieltes und leistungsstarkes Team Planungsaufgaben kreativ und professionell bearbeiten. Dabei setzen wir unsere Energie dafür ein, dass ein Projekt gleichermaßen gestalterisch anspruchsvoll und wirtschaftlich erfolgreich ist.
Wir arbeiten schwerpunktmäßig in den Leistungsphasen 1- 4 (Entwurf und Genehmigung) und haben eine besondere Stärke in der Abstimmung komplexer Projekte mit den beteiligten Bauämtern vor Ort entwickelt.
Dabei liegt unsere Spezialisierung in der Erstellung von Machbarkeitsstudien für Projektentwicklungen verschiedener Investoren.
Die über mittlerweile 28 Jahre gewachsenen guten Beziehungen zu den Ämtern helfen uns, sehr schnell fundierte Aussagen zur Bebaubarkeit einzelner Grundstücke zu treffen.
Wir arbeiten in enger Tuchfühlung mit unseren meist privaten Bauherren und entwickeln zusammen mit ihnen „custom-made-architecture“.
Dabei setzen wir die Vorstellungen unserer Auftraggeber, seine gestalterischen Ansprüche, sein Budget und seine terminlichen Vorgaben durch flexible und kreative Architekten in die Realität um. Mit hohem Anspruch an die Qualität unserer Planung schaffen wir eine enge, meist sehr persönliche Bindung an unsere Auftraggeber.
Unser Ziel ist dabei, hochwertige Architektur unter Berücksichtigung der vorgenannten Rahmenbedingungen zu schaffen.
Unsere Arbeit als Team von Architekten ist für unsere Bauherren geprägt von einem direkten und unkomplizierten Austausch, wir sind konzentriert und schnell und widmen unsere ganze Aufmerksamkeit diesen Zielen.
Meine persönliche Arbeit wird ganz wesentlich durch verschiedene Erfahrungen geprägt:
Die 1,5-jährige Seefahrt auf Handelsschiffen nach dem Abitur hat mir geholfen, einen Blick über den Tellerrand enger akademischer Welten zu werfen und das regelmäßige Aikido-Training seit 39 Jahren gibt mir die Konzentrationsfähigkeit, die für eine professionelle Arbeit als Architekt notwendig ist.
Meine Familie schafft das notwendige Gegengewicht zu meiner Arbeit und schärft den Blick für das Wesentliche.
NEWS
NEWS
NEWS
NEWS
NEWS

Klimawerkstatt
Aufgabe/ Projekttyp | Bauherr | Daten | Stand |
|---|---|---|---|
Neubau, Forschung & Lehre | ideas into energy |
| Projektentwicklung |
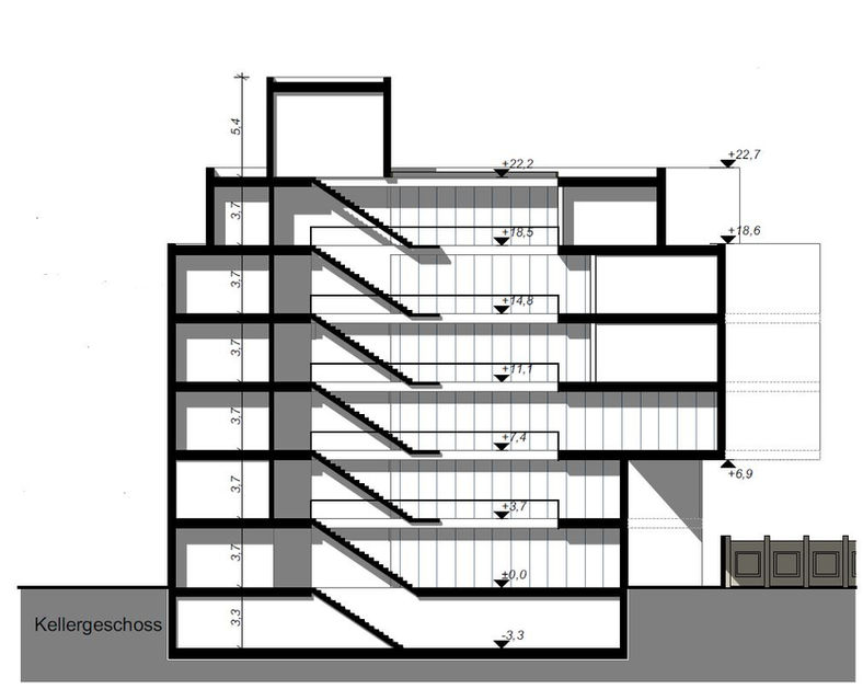
Das Gebäude der Klimawerkstatt Berlin ist der bauliche Teil einer Machbarkeitsstudie der Handwerkerinnungen für „Elektro“ und „Sanitär Heizung Klempner und Klima Berlin“ und dem Berliner Institut „ideas to energy“ mit dem Ziel, dem Fachkräftemangel im Berliner Klimahandwerk durch ein gewerkeübergreifendes Aus- und Weiterbildungszentrum im Bereich klimaschonender, erneuerbarer Gebäudeenergietechnik entgegenzuwirken und die Fachkräfte so auszubilden, dass die Montage als Komplettpaket aus einer Hand erfolgen kann.
Auf einem Grundstück der Elektroinnung in Berlin-Köpenick, in direkter Nachbarschaft zum HTW Campus, schlagen delusearchitects hierfür eine architektonische Antwort vor. Das Gebäude folgt der trapezförmigen Grundstücksform und weitet sich dadurch im Grundriss Richtung Nordwesten. Von der Option die denkmalgeschützte Mauer an der Grundstücksgrenze ins Gebäude zu integrieren, bis hin zum freistehenden Kubus mit einem Geschoss weniger als der ursprüngliche Baukörper, werden drei Varianten untersucht.
Der Idee der Aufwertung des Handwerksimages durch Öffnung für ein breites Publikum folgend, erschließt sich das Haus durch ein großzügiges, zweigeschossiges Foyer mit Galerie, in welchem die Exponate zum Thema Handwerk und Klimawandel für große Besuchergruppen präsentiert werden. Eine weitere Besonderheit des Schulungszentrums ist die Transparenz der normalerweise versteckten Technikräume, in denen u.a. die Wärmepumpe einsehbar ist, die aus den Solarpaneelen auf dem Dach und der Fassade gespeist wird. Ganz im Sinne des Erlebbarmachens und Lernens werden diese anstatt im Keller exponiert im EG und 1. Obergeschoss angeordnet und durch Glaswände einsehbar gemacht. In den weiteren Obergeschossen befinden sich viele Werkstätten und Seminarräume für Schulungen, ganz oben die Büros, alle um den zentralen Lichthof angegliedert. Und so zieht sich das Thema der Solarenergie und das innovative Erlernen der Energiewendetechnologien konsequent mit bis zu 66% Photovoltaik-Anlage auf dem Dach, über die Fassade, die mit ihren vielen unterschiedlichen Solarelementen und einer lebendigen Leuchtschrift das Gebäude schon von Weitem erfahrbar macht und die Besucher anlockt, bis hin zu den Elektroladestationen im Außenbereich.



